199-2653-0442

CLASSICAL VILLA DECORATION PROJECT

经典装修案例

参考过往经典案例,构建您心中的完美家园
您的位置:首页 > 经典装修案例

《当代极简,重构生活的高级感》

100
施工面积: | 设计风格:现代

《当代极简,重构生活的高级感》

100
施工面积: | 设计风格:现代
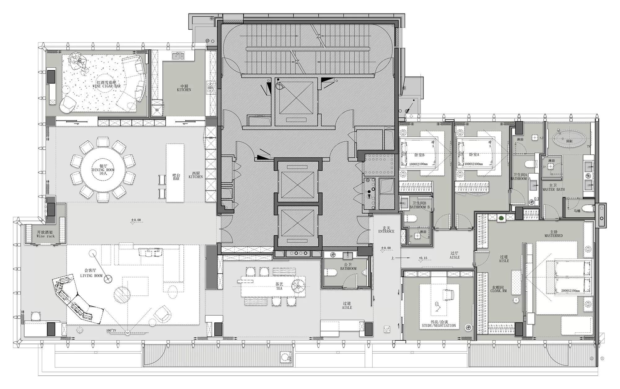
设计理念:
空间叙事:
以「理性极简」为内核,这套设计将都市的摩登气息与生活的松弛感深度糅合。从客厅到卫浴,每一处场景都在「克制与释放」的平衡中,演绎着当代精英对居所的极致想象——既要有俯瞰城市地标(如窗外摩天轮)的视野野心,又要容纳独处时的静谧温度。
 
1. 客厅:城市风景的「取景框」
 
大面积无框玻璃将江景与摩天轮纳入室内,成为天然的艺术背景。浅灰石材墙面的冷调质感,与米白沙发、焦糖色单椅的暖调肌理碰撞,在金属格栅隔断的现代语汇中,让空间既通透又充满层次,成就社交与休憩的双重场域。
2. 餐厅:仪式感的「静默剧场」
 
环形吊灯如艺术装置般悬浮,为黑纹大理石餐桌镀上精致光晕。玻璃酒柜的通透与柜体的沉稳形成对话,搭配浅咖餐椅的柔和线条,让每一次用餐都成为兼具私密与格调的仪式,光影流转间,尽显主人的品味锋芒。
3. 厨房:烟火气的「极简诗学」
 
灰白大理石岛台消解了厨房的烟火厚重感,嵌入式酒柜与玻璃置物架的设计,让收纳也成为视觉美学的一部分。两把几何感吧椅的点缀,让备餐区秒变轻松的社交角落,将「实用」与「审美」不着痕迹地融为一体。
4. 卫浴:疗愈感的「都市避难所」
 
深色石材墙面的天然肌理,与纯白浴缸、金属洁具的冷冽质感形成张力。百叶窗过滤后的柔光,让空间在私密中透着呼吸感,淋浴区与洗漱区的动线设计,既保证功能分区,又以玻璃隔断维持视觉的延伸感,每一次沐浴都是对身心的温柔疗愈。
设计内核:
拒绝冗余装饰,以材质的天然肌理、线条的干净利落,以及光影的巧妙运用,在「少即是多」的法则里,为空间注入经得起时间推敲的高级感——这不仅是一套居所,更是当代生活方式的具象表达。
Copyright © 2022-2025 红杉树装饰官网 版权所有
快速报价
*
*
   免   费   
   报   价   
15000㎡ 整装实景体验馆 免费装修咨询 丨 199-2653-0442
预约设计